Barcelona

Hazelwood

1573 E Cherrywood Place, Chandler, AZ 85249

WELCOME TO Hazelwood

1573 E Cherrywood Place, Chandler, AZ 85249

3
Beds
2
Full
1
Half
3
Car Garage
3,031
SQFT
Contact: Hazelwood | 480-422-0655 |

This popular floor plan features a Den off the front entry and a flex room, providing just the right space for your special interests. Our designers have curated all the selections in this home to make it light, warm and inviting.

The gourmet kitchen features:

Selected Structural Options:

Additional Features and Upgrades Include:

Front yard landscaping package INCLUDED

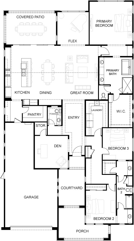
Floor Plans

Lot 20 Hazelwood Barcelona

View Interactive Floor Plan

Hazelwood homesite 19 Daviana Urban Farmhouse front entry
Hazelwood homesite 19 Daviana Urban Farmhouse front entry
Hazelwood homesite 20 Barcelona Urban Farmhouse front entry interior
Hazelwood homesite 20 Barcelona Urban Farmhouse Great room
Hazelwood homesite 20 Barcelona Urban Farmhouse Great room view to kitchen
Hazelwood homesite 20 Barcelona Urban Farmhouse Great room view to kitchen
Hazelwood homesite 20 Barcelona Urban Farmhouse Great room view to entry
Hazelwood homesite 20 Barcelona Urban Farmhouse Great room view to dining and kitchen
Hazelwood homesite 20 Barcelona Urban Farmhouse dining and kitchen
Hazelwood homesite 20 Barcelona Urban Farmhouse dining and kitchen
Hazelwood homesite 20 Barcelona Urban Farmhouse kitchen
Hazelwood homesite 20 Barcelona Urban Farmhouse kitchen
Hazelwood homesite 20 Barcelona Urban Farmhouse kitchen view to great room
Hazelwood homesite 20 Barcelona Urban Farmhouse kitchen
Hazelwood homesite 20 Barcelona Urban Farmhouse kitchen
Hazelwood homesite 20 Barcelona Urban Farmhouse kitchen pantry
Hazelwood homesite 20 Barcelona Urban Farmhouse flex room
Hazelwood homesite 20 Barcelona Urban Farmhouse primary bedroom
Hazelwood homesite 20 Barcelona Urban Farmhouse primary bedroom
Hazelwood homesite 20 Barcelona Urban Farmhouse primary bath
Hazelwood Homesite 20 Barcelona Floor Plan Urban Farmhouse Elevation Primary Bath
Hazelwood Homesite 20 Barcelona Floor Plan Urban Farmhouse Elevation Primary Bath
Hazelwood Homesite 20 Barcelona Floor Plan Urban Farmhouse Elevation Laundry Room
Hazelwood Homesite 20 Barcelona Floor Plan Urban Farmhouse Elevation Jack & Jill Bath
Hazelwood Homesite 20 Barcelona Floor Plan Urban Farmhouse Elevation jack & Jill bath from 3rd bedroom
Hazelwood Homesite 20 Barcelona Floor Plan Urban Farmhouse Elevation secondary bedroom


Virtual Tour

Request Information

This field is for validation purposes and should be left unchanged.
Name(Required)
Get in Touch:   Call   Text   Email