Willamette

Hazelwood

1541 E Nolan Place, Chandler, AZ 85249

Willamette Modern Prairie

WELCOME TO Hazelwood

1541 E Nolan Place, Chandler, AZ 85249

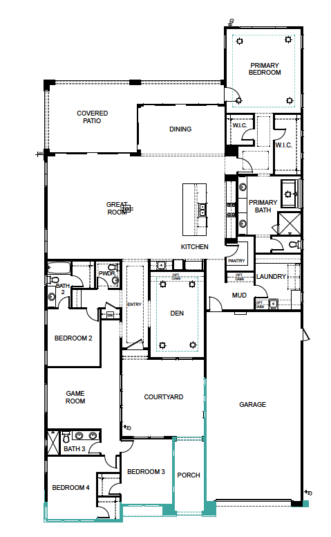
4
Beds
3
Full
1
Half
4
Car Garage
3,576
SQFT
Contact: Hazelwood | 480-422-0655 |

When size matters most, the Willamette truly delivers with every thoughtful detail.  This floor plan allows for the perfect multi-gen home with space for everyone to feel at home.  The welcoming, large courtyard at the front creates the perfect first impression and leads through to the spacious living space. Great room provides wonderful views to the expansive covered patios with glass walls of sliding door panels that open up to your private outdoor sanctuary.

This designer-curated home features clean lines and timeless textures.

The gourmet kitchen features:

  • Upgraded Wolf ®Pro-style 36” gas range top with 4-burners +infrared griddle
  • Upgraded SubZero® 42” smart refrigerator in stainless steel finish with internal ice dispense, flush inset for built-in look
  • 30″ KitchenAid® Oven/Microwave wall unit
  • Cove® Smart Dishwasher with 3rd rack
  • 24″ SubZero® under-counter Beverage Center w/Glass panel door

Selected Structural Options:

Additional Upgraded Features Include:

Floor Plans

Willamette Hazelwood Homesite 3

Screenshot 2026-04-07 at 11.52.18 AM

View Interactive Floor Plan



Virtual Tour

Request Information

This field is for validation purposes and should be left unchanged.
Name(Required)
Get in Touch:   Call   Text   Email